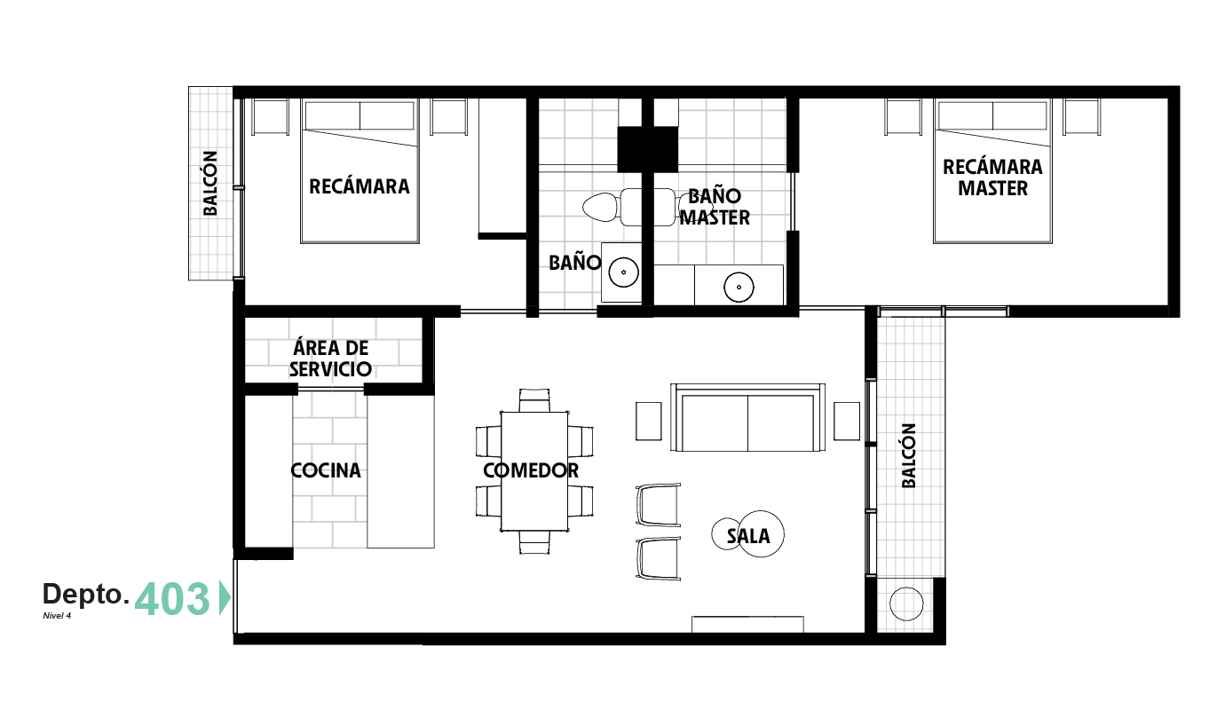
tipos

CARACTERÍSTICAS:

  • 2
  • 2
  • 1
  • 82.90 M2
  • HABITABLES: 77.25 M2
  • BALCÓN: 5.65 M2

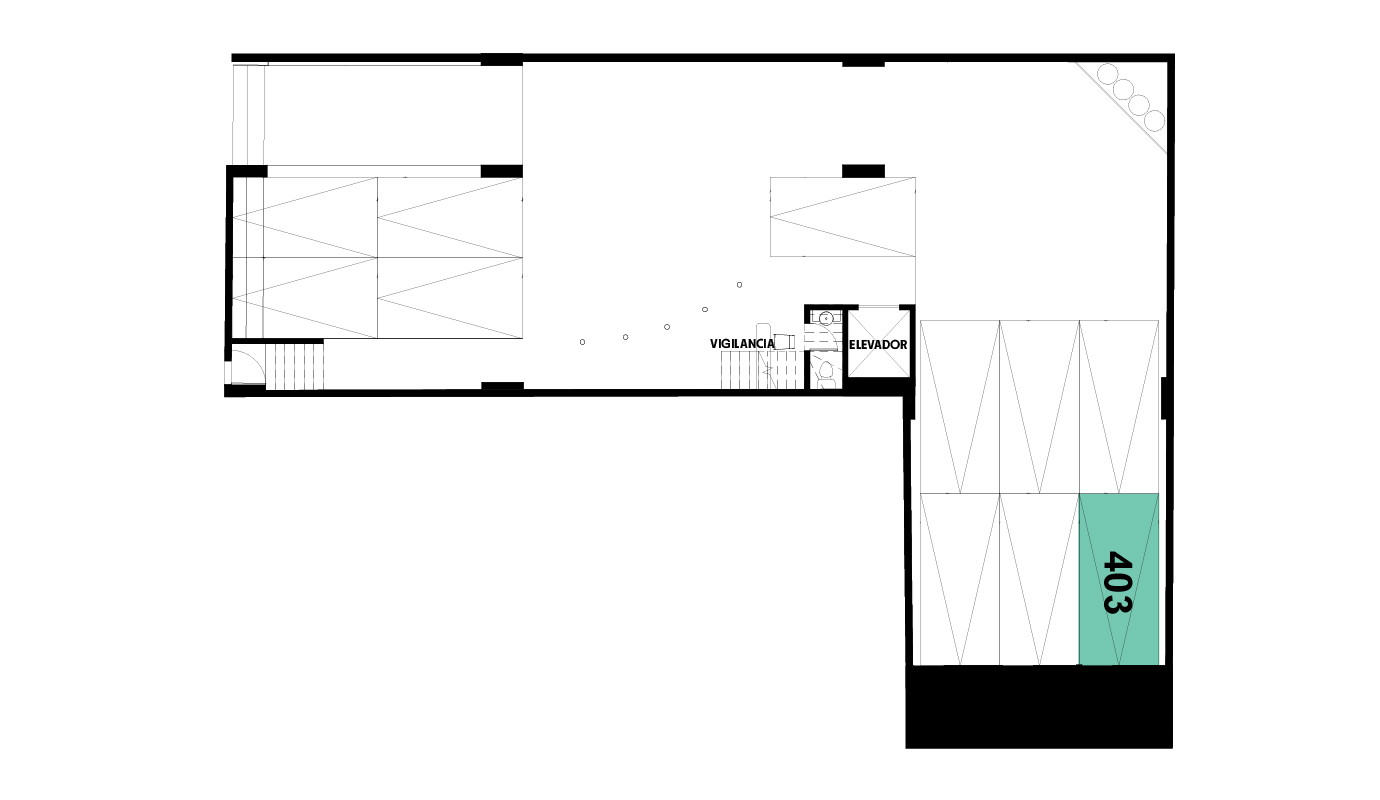
ROOF GARDENS PRIVADOS:

  • Roof Garden 04: 18.67 M2

live the city