tipos

CARACTERÍSTICAS:

  • 2
  • 2
  • 0
  • 71.70 M2
  • HABITABLES: 69.05 M2
  • BALCÓN: 2.65 M2

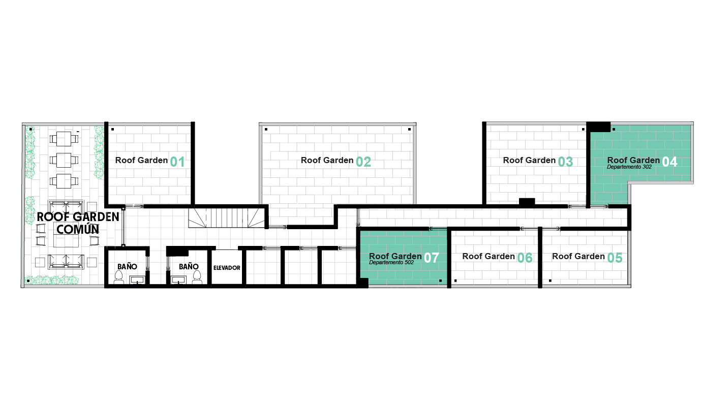
ROOF GARDEN PRIVADOS:

  • Roof Garden 04 (Depto 302): 20.05 M2
  • Roof Garden 07 (Depto 502): 14.40 M2

live the city